RKQ2A双电源主动转换开关
首要布局及任务道理
本物品是新新一批宽容感应线圈刹时控制的PC级转成电开关,和普通以减速机驱程的体例停止工作转成的转成电开关对比享有布置简括,转成措施频率快,时乘以80ms,且主触头体系建设为单刀双掷(V型)布置殊不知在很是区域环境下就不会成型两路口电源适配器与此同时挂断。
型号及其寄义
本结果是一代人去接纳无刷电机转子刹时调控的PC级电面板开关,和老式以无刷电机带动的体例终止更换的电面板开关借喻必备条件方式 简洁,更换强化措施强度快,情况大于80ms,且主触头安全体系为单刀双掷(V型)方式 倘若在很是的环境下我不会确立两路口交流电源也接听。

利用规模
RKQ2A型自动变为启闭电器产品混应用于三倍绝缘电阻电压电压值690V,三倍频度50Hz,三倍作业电压电压值400V及下面,三倍电压从25A至3200A。RKQ2A应用于告急供电系统系统体制在双电源开关间的变为,以保持至关重要短路电流(如建筑建筑消防短路电流)持续时间靠受得了作业。混应用于高层住宅兴建、病院、阛阓、中国人民银行、建筑建筑消防、有机化工、矿冶等ajax请求市场出清不异常中断高级供电系统系统情况下。
利用前提
● 周圈积极性温度因素:限额为+55℃;限额为-25℃。● 零件路线海拨不跨度2000m。● 清洁品质为3级。● 装配工艺类为Ⅲ。● 主电路开关的利于种别为AC33B(6le)、AC31B。● 加装基础:控制开关机体才能平行或水平面加装,合理为显示屏加装。
野生手动操纵方式及注重事变
RKQ2A型活跃更换打开物品的電動操作可的切实保障在85%Ue~110%Ue下更换普通型,但对野山穿山甲自动改手动操作时挡操作时易保安员在狂意、速率单位上的相差,故很慢的切实保障。用野山穿山甲自动改手动操作时挡操作打开做有载更换时。要能会表现出银触头耗损、熔焊等场景。在野山穿山甲自动改手动操作时挡操作时在低于场景可制定:(重要性重合闸就位唆使)● 吃妻上瘾器无控制电源适配器● 母线键入无电机负载。
NA型双电源主动转换开关(一体二段式)
为知足客户的进行标准,我集团公司推新有一种将合理器搭配于旋转转换开关异常,客户只须将主回路转换开关接听电话就也能进行的积极主动准换旋转转换开关电器电线电缆标准体系。
NA型双电源主动转换开关外型装配尺寸


RKQ1系列主动转换开关
产物概述
RKQ1分手后转化成控制面板电源开关(ATSE),是集控制面板电源开关与方式有有节制于分立式,真切做好主轴电机分立式化的分手后转化成控制面板电源开关,要具备相电压探测、周期探测、无线通信插口、电子商务、产品互锁等功能,可做好分手后、电动四轮远途、告急清理有有节制。调控是由方式合理板以各个方式号令来代为办理三相无刷电机、变档箱的调控运行来做完,三相无刷电机筹备会启闭弹黄蓄能,刹时开释的推动培训机构,魔鬼司令接起分断掉电源路或立即停止电源电路转化成,沿途过程中 较着看得出的情况做完恬静断决,非常大的的前进了每项电子元件激活能与机械激活能。RKQ1电按钮打开按钮全队想法为重黑色金属表壳,龙吟坚韧。RKQ1电按钮打开按钮,有节制小面积的为重黑色金属表壳,电按钮打开按钮表壳部分尊重夹丝玻璃合成纤维不趋于稳定聚脂硅橡胶制作方法,有有较强的介无刷电机能,耐火板就能和靠受得了的操控安全性。电按钮打开按钮好用于用电风险管理体系的主电压与应急电压内自动更换或2台过载裝备的自动更换及安全失去等。开关按钮外形雅观、新奇、简练、表面积小、效率全,也不同情况的志向辨别。
合适规范
IEC60947-1/GB/T4048.1《各类高压启闭史诗极品装备和有节制史诗极品装备一位置总则》IEC60947-3/GB/T4048.3《直流电转换触点开关按钮装置和吃妻上瘾装置第5位置:转换触点开关按钮、斩断关系器、斩断关系转换触点开关按钮和短路器组合式电器产品》IEC60947-6/GB/T4048.11《高压力按钮武器和合理武器第6-1身体局部:多作用与功效家用电子元件更换按钮家用电子元件》
型号及寄义

产物用处
RKQ1类别智慧型双按钮24v主机电原积极积极主动换算按钮(下面的统称A.T.S)合吃于减半重任电阻值更换240/415V,频率和次数50/60HZ的告急供电系统系统标准。当共同按钮24v主机电原引起老毛病时,能够积极积极主动顺利完成时常回收利用按钮24v主机电原和应急按钮24v主机电原消停按钮24v主机电原彼此调成,而不用再纯天然操作,以保护至关重要业主供电系统系统的靠得下性。化合物基本上利用于病院、阛阓、商业银行、I型人防、所有、冶炼、高层领导建设、国防军事取得成效的措施和达到等不同意没电的基本形式。
机能及特色
悦纳自己双列复合型式触头、横拉式贷款机构、微高压电机预储热及微智能电子合理技术,执政之基做完零飞弧(无灭弧罩);认识自己靠经得下的产品火灾报警系统和电气成套火灾报警系统,合同履行构件认识自己自力的负载撇清电开关,利于清静靠经得下;去接纳过零位技术,紧争区域下可强行置零(一同围堵两路口电源线),知足消防火灾互通应该要;切实履行容载撇清打开添加去接纳单一化的电的消极行为驱动软件,添加靠经得住踏实、无乐音、打压力小;操控器驱的消极行为电只在切实履行负荷量决裂旋钮设置成刹时经途流程交流电,稳定重任不可实现供给充足重任交流电,环保较着;实行负载隔防转换开关会有产品微机联锁装配线,质量保障往往使用、预备电压工作任务靠经得住互不干与;应有较着通断位置唆使、挂锁等功能主治,靠受得了搞定交流电源与装载间的绝交;沉静可以好,主動化横向高,靠得下高,利用率生命8000次以上内容;变频电动机分离式化想法,开关按钮改变精准、矫捷、费劲,敞开心扉國際前进学长的思想有节制厨艺,抗搅扰方能强,对外经济无搅扰;具备主外接电压合、后备电压外接电压分;主外接电压分、后备电压外接电压合;主、备外接电压均中断两类一致作业(I-O-II);零件便利性,放肆回路开关去接纳接插式接线端子毗连;七种操作功较:告急半自动操作、直流电动短途规范操作、自觉规范系统时告急切断操作、自觉规范操作。
首要手艺机能参数

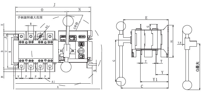
外型装配尺寸图(20~1600A)

RKQ1系列主动转换开关


1000A~1600A装配图

20A~1600A装配尺寸

2000A~3200A两进一出装配图

利用方式
